Singelgracht tower

The use of buildings is becoming increasingly single-purpose. Designs are created for one function, one use, and one user. History has shown that our architecture is not as versatile as time itself. Society changes, and with it the use of our built environment. Needs evolve, cultures shift, and patterns of living transform — but buildings remain. Too often, they stand empty, become obsolete, or are eventually demolished.

This is why adaptive buildings — and therefore adaptive design from the earliest design phase — are essential. Designing across all layers of a building, from structure and installations to façade, function, access, and the experiential value for the user, allows architecture to respond to change. By navigating these layers from the design phase onward and considering them as an interconnected system, adaptive spaces emerge — spaces that evolve with the needs of users and with shifts in society and the economy.

Singelgracht Tower is a redevelopment project located on Raamplein, near Leidseplein, in the centre of Amsterdam. The project focuses on repurposing an existing building rather than demolishing it, embedding principles of adaptive reuse within a dense urban context. Situated among cultural and monumental buildings, the tower is positioned at the end of a residential block and faces a small public square.

Location
Amsterdam

Year
2021

University
Amsterdam university of applied sciences

Role
Designer

Project
Research
Renovation

Historical and monumental buildings in the area

Architectural language in the neighbourhood

Advantages location

Central position in Amsterdam

Sunlight all around the building

Acces all around the building

View over the city

Average height

Architectural language location

Design principles

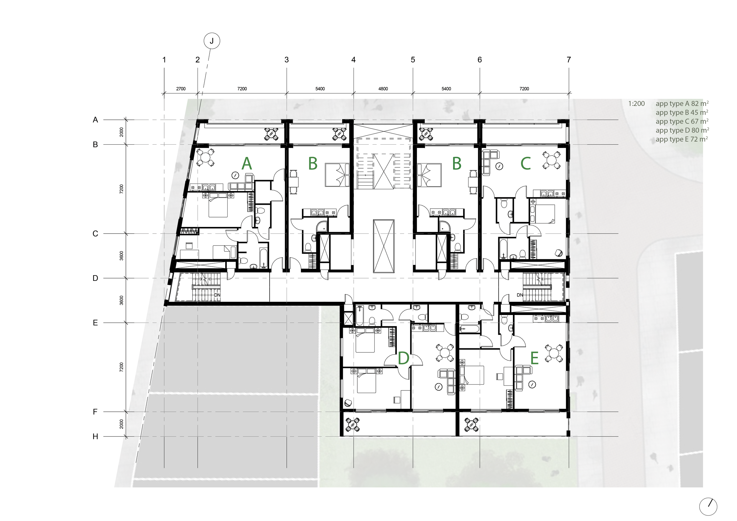
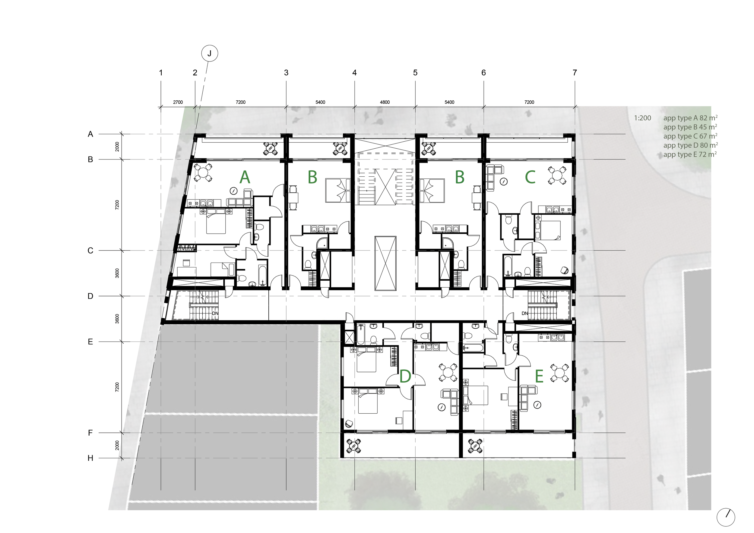
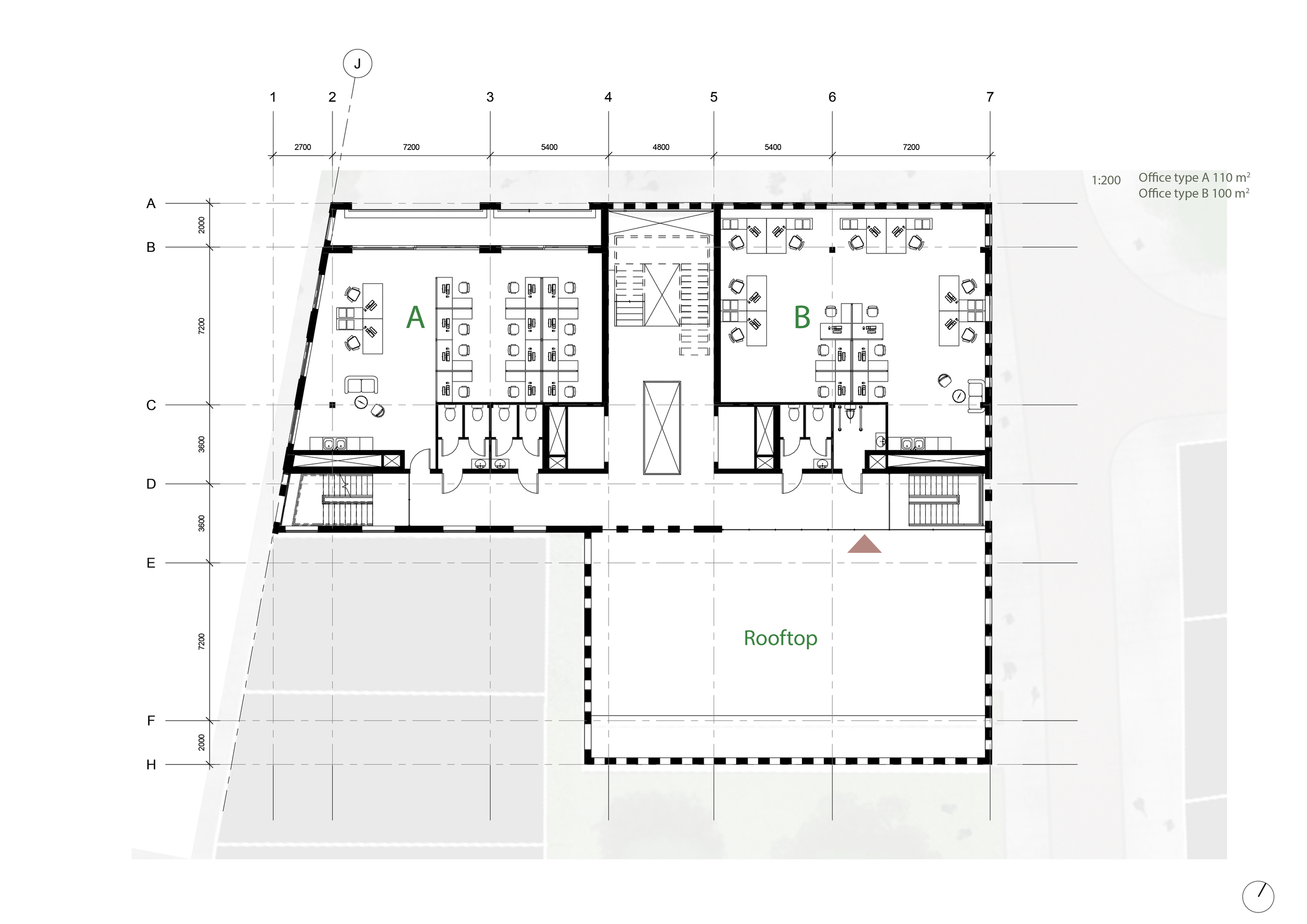
Columns structure for future flexible plan.

Combination of square Hollow Section and concrete for strength and fire safety

Combination of dimensions according to building code housing and offices and human scale for future flexibility.

Maximising accessibility by using corridor and thus freeing the facade.

Having multiple entrances to acces the building for future division and flexibility in users.

Notable entrance for easy recognition and thus better accessibility.

High plinth for commercial uses on the ground floor.

Architectural language is similar to the historical facades.

Extra height floors for future transformation from housing to offices if needed.

Outdoor spaces for future transformation from offices to housing according to the housing code.

Design

The building as one mass.

Adapting height building and number of floors to the surrounding heights.

Space behind the building for the backyard and accessibility.

Connection with the backyard.

The building as stepped mass closing and connecting to the blok.

Creating voids in the buildings for atriums, offering multiple entrances and sunlight.

Transparant facade for the atriums for sunlight and better connection with outside.

Differentiate the last two floors to follow the hierarchy if the existing architectural language in the street.

Using different materials to give the building a contemporary character.

Incorporating balconies and outside spaces in the facade.

Rotating one of the last floors, to create a dynamic all sided architectural design.

Site

Facades

Section

Previous
Previous

De Gelder